ホイール式ステージリフト 4.5m
※バッテリー駆動方式です。
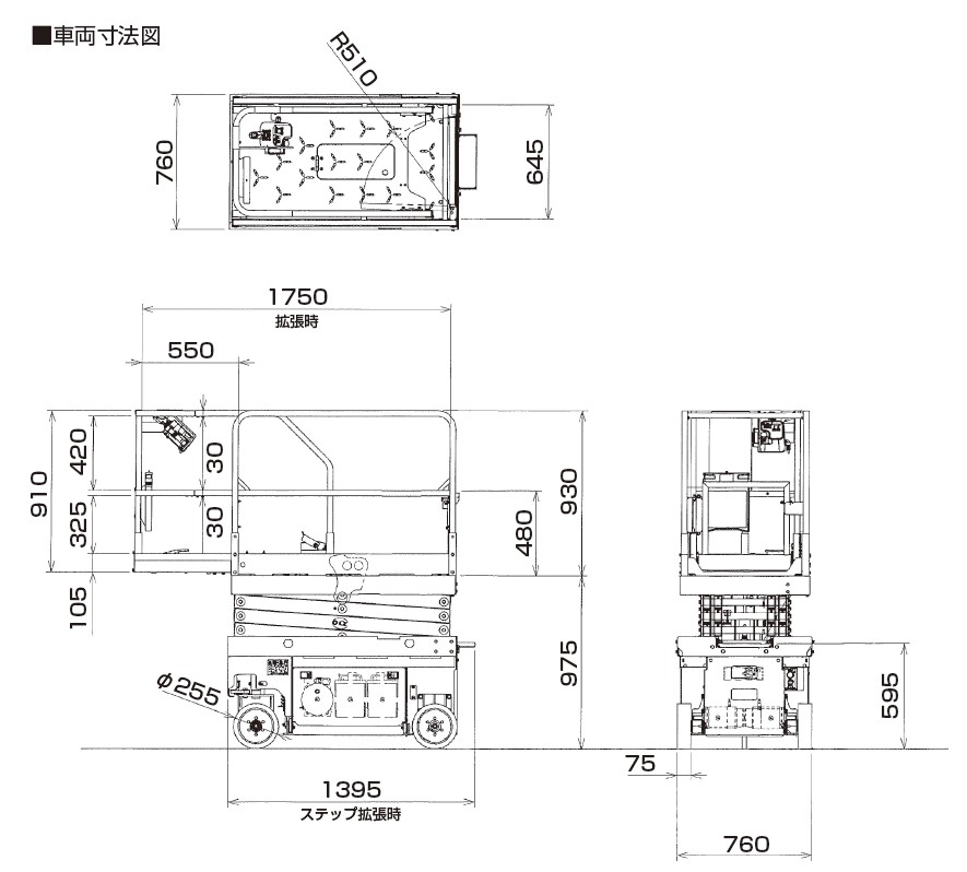
スペック
| 商品コード | PA4 04511 | ||
| メーカー | 北越工業 | ||
| 商品名 | 4.5mホイールステージリフト | ||
| 型式 | ENTL045S-4 | ||
| 積載荷重(kg) | 200 | ||
| 床延長部積載荷量(kg) | 115 | ||
| ステージ | 最大床高さ(mm) | 4,500 | |
| 内側寸法 | 幅(mm) | 645 | |
| 奥行(床延長時)(mm) | 1,200(1,750) | ||
| 高さ(mm) | 930 | ||
| ホイル仕様 | 白タイヤ | ||
| 寸法 | 全長L(mm) | 1,305 | |
| 全幅W(mm) | 760 | ||
| 全高H(mm) | 1,905 | ||
| 車両重量(kg) | 740 | ||
※バッテリー駆動方式です。
