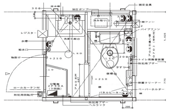
女性専用仮設トイレ

【標準仕様】
●洋式暖房便座
●擬音装置(流水音)
●便座用アルコール消毒器
●手すり
●2連ペーパーホルダー
●ヘルラック・安全帯ホルダー
●洗面化粧台(鏡付・温水手洗い)
●パネルヒーター
●衣装フック
●防犯ブザー
●回転灯
●ドア部分目隠しロールスクリーン
●ドア2重ロック施錠

【オプション仕様】
●ウォシュレット付洋式暖房便座
●エアコン

スペック

商品コード NBF 000B1
メーカー ユニバーサルハウス
外寸法(幅×奥行×高さ)(mm) 1,870×1,800×2,625
内寸法(幅×奥行×高さ)(mm) 1,720×1,650×2,375
重量(kg) 850
消費電力 ※ウォシュレット無し(W) 1,550
手洗い/トイレ排水用貯水槽(L) 160
便槽容量(L) 650

※ウォシュレット付の場合は300W増加します。