120型(60型×2連棟)ハウス

スペック

 

商品コード NA6 12000
メーカー ユニバーサルハウス
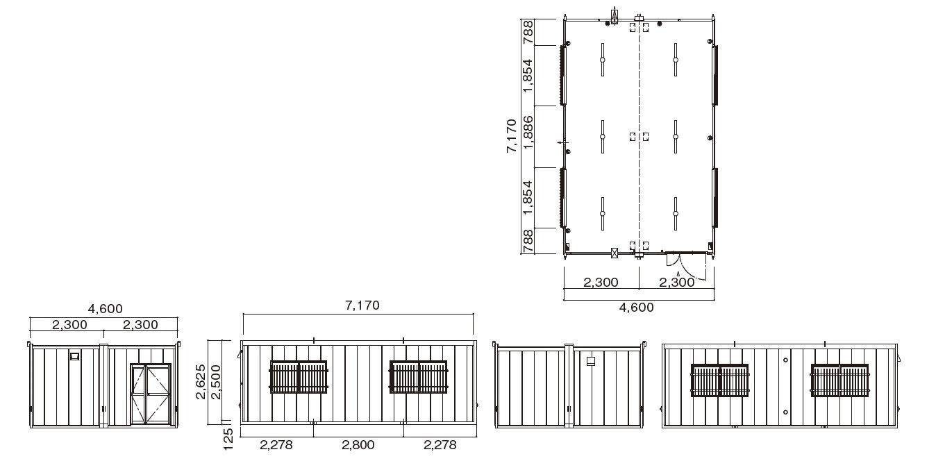
床面積 7.12×4.55=32.4㎡
外部寸法・仕様 全長D(mm) 7,170
全幅W(mm) 4,600
全高H(mm) 2,625
2階建時全高(mm) 5,250
重量(kg) 3,580
構造/屋根 鉄骨造/長尺カラートタン
外壁 金属系サイディング
窓(アルミサッシ・格子付) 4
ドア(アルミサッシ) 1
室内寸法・仕様 天井高(mm) 2,300
室内幅(mm) 4,500
奥行(mm) 7,070
合板
壁・天井 プリント合板
給気口/電動換気扇 1/1
照明(LED)※ 6
コンセント 7
FFストーブ排気口 1

※一部蛍光灯の商品もございます。