階段風除

スペック

商品コード NAB B0003
メーカー ユニバーサルハウス
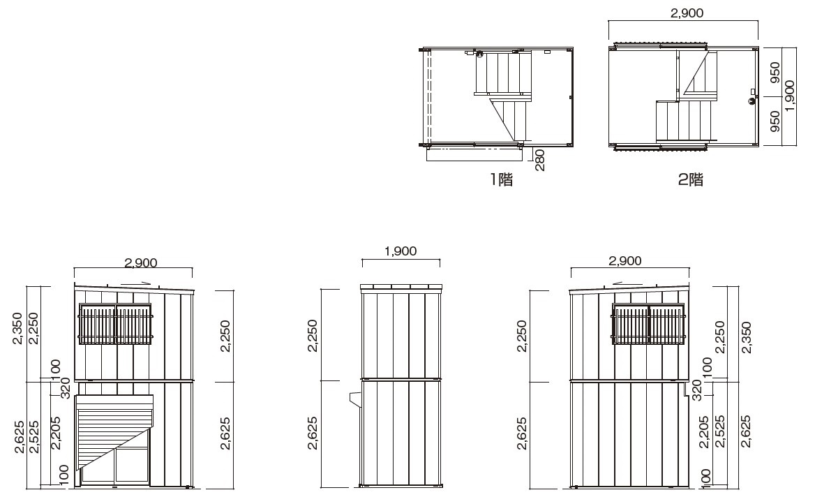
床面積 2.85×1.85×2=10.55㎡
外部寸法・仕様 全長D(mm) 1,900
全幅W(mm) 2,900
全高H(mm) 4,975
2階建時全高(mm)
重量(kg) 1,480
構造/屋根 鉄骨造/長尺カラートタン
外壁 金属系サイディング
窓(アルミサッシ・格子付) 2
ドア(アルミサッシ) 1
室内寸法・仕様 天井高(mm) 2,250
室内幅(mm) 2,850
奥行(mm) 1,800
縞鋼板
壁・天井 鉄骨表し
給気口/電動換気扇
照明(蛍光灯) ハロゲンセンサーライト×2
コンセント 2
FFストーブ排気口