クローラー式ステージリフト 6m
スペック
| 商品コード | PA5 06011 | ||
| メーカー | エスマック | ||
| 商品名 | 6mクローラーステージリフト | ||
| 型式 | KC60L(スライドデッキ仕様) | ||
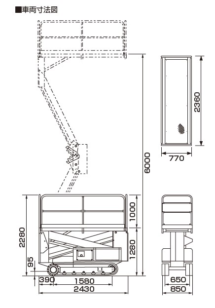
| 積載荷重(kg) | 250 | ||
| 床延長部積載荷量(kg) | 100 | ||
| ステージ | 最大床高さ(mm) | 6,000 | |
| 内側寸法 | 幅(mm) | 770 | |
| 奥行(床延長時)(mm) | 2,360(3,160) | ||
| 高さ(mm) | 910 | ||
| クローラーシュー | ホワイトゴム | ||
| 寸法 | 全長L(mm) | 2,430 | |
| 全幅W(mm) | 850 | ||
| 全高H(mm) | 2,280 | ||
| 車両重量(kg) | 1,480 | ||
※バッテリー駆動方式です。
